
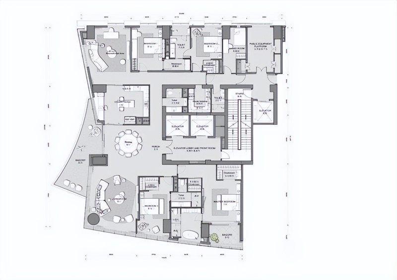
现在大平层真的火到不行,但能把整层两套打通做成408㎡的,我觉得不是有钱就行,得有点“反套路”的脑子——毕竟不是拆堵墙拼一起那么简单,得把每个空间的功能揉碎了重新拼,还得让光和风景都不浪费,这才是真的懂生活。
就说客餐厅的横厅设计,换我可能会把沙发对着电视,可人家偏把沙发背对着西南的大玻璃窗——你想啊,阳光铺在黑色大理石地面上,不会闷反而显大气,5米长的皮质沙发往那摆,窝在里面看窗外的树影晃啊晃,比去网红咖啡馆坐一下午舒服十倍吧?

现在年轻人不就想要这种“躺平看风景”的松弛感吗?
厨房的设计我真的拍大腿佩服!

中西厨分开还加个岛台,这才是懂过日子的人想出来的招。
中厨炒辣椒的时候关上门,再也不用怕味道飘得满屋子都是;西厨早上做个松饼煮杯咖啡,直接在岛台啃面包,不用跑餐厅来回折腾——你有没有过早上赶时间,端着早餐往餐厅跑差点摔一跤的经历?

还有朋友来开party,岛台往那一站,摆点酒和小食,大家围在那碰杯聊天,比挤在餐桌边热闹多了,是不是?
主卧室的细节真的戳心到骨子里。

男女主人各有衣帽间,再也不用抢衣柜——你有没有过因为衣服挤在一起,翻半天找不到想穿的裙子,跟另一半吵架的经历?
私人阳台放个小椅子,想独处的时候坐那吹吹风,比躲在卫生间刷手机舒服多了;主卫的浴缸直接靠窗,晚上泡在里面,百叶窗漏进来的光拼成一条条的,比酒店行政套房的氛围感还绝,是不是连泡个澡都能幸福感爆棚?

双盆洗手台就更实用了,早上不用抢着刷牙,夫妻俩各忙各的,连吵架的机会都少了,这不比买个贵得要死的水晶灯有用?
各个房间的风格也没乱搭,真的懂每个家庭成员的需求。

男孩房用黑白灰,成年了要酷一点——你想想你家小子是不是总嫌房间太粉太嫩?
女孩房浅色调加蓝灰,温柔得像奶茶,小姑娘肯定喜欢;长辈房带点中式元素,暖黄的木饰面配山水纹地毯,看着就温馨,不会像有些豪宅那样冷得像展厅,长辈住进去都觉得踏实。

还有家政间!
把洗衣干衣烫衣全堆在那,不用把洗衣机放阳台占地方——你有没有过想在阳台养点花,结果被洗衣机占了一半空间的遗憾?

也不会让客厅堆着待洗的衣服,家里乱往往就是因为杂物没地方收,这点真的懂家庭主妇的痛!
其实现在很多人买大房子,总想着“装得像豪宅”,铺金砌银的,结果住进去发现,擦个水晶灯要爬梯子,坐个真皮沙发都怕把咖啡洒上去,反而不如小房子舒服。真正的豪宅不是堆贵材料,是“把钱花在刀刃上”:客厅电视背景墙用暖灰斜纹大理石,不扎眼还高级;餐厅木饰面用5毫米凹缝分成黄金比例,看着就舒服;休闲区用木地板和硬包,比全贴大理石温馨多了;连天花都只做了两级造型,没搞复杂吊顶——空间够大,太花哨的造型反而抢了窗外风景的风头,是不是?

你看人家这个大平层,打通后没浪费一寸空间,每个区域都有用处,材质高级但不张扬,颜色搭配得协调,连光都能当装饰用。
早上被阳光叫醒,晚上在浴缸里看夜景,周末和家人在休闲区看电影,朋友来了有地方开party——这才是豪宅该有的样子吧?

不是给别人看的“展厅”,是自己住得舒服的“家”。
你心中的理想房子是不是这样的?

有没有哪个细节戳中你?
反正我是看完就想把自己家的厨房拆了重装!
天盛优配提示:文章来自网络,不代表本站观点。